Airy

2025

 

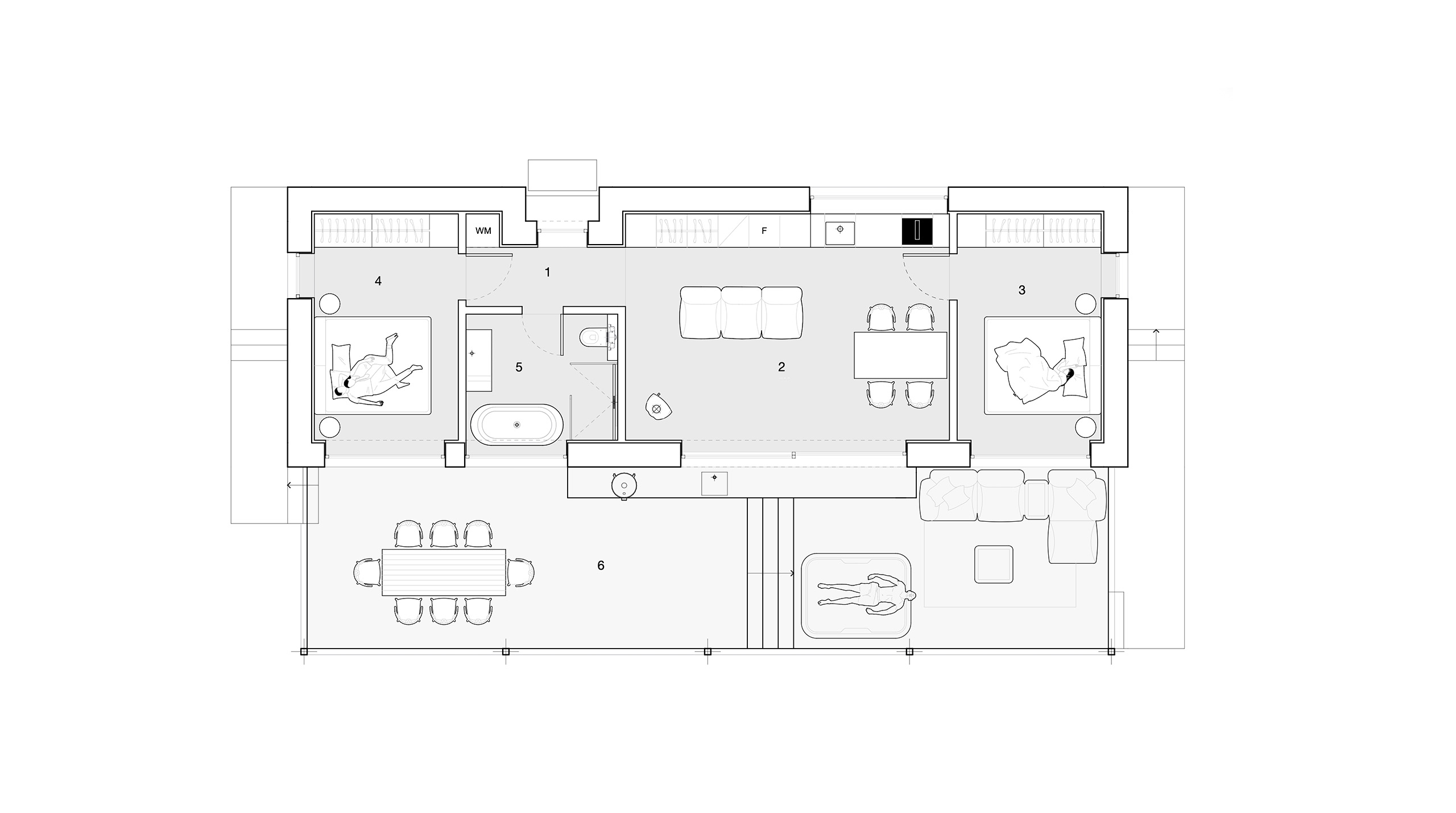
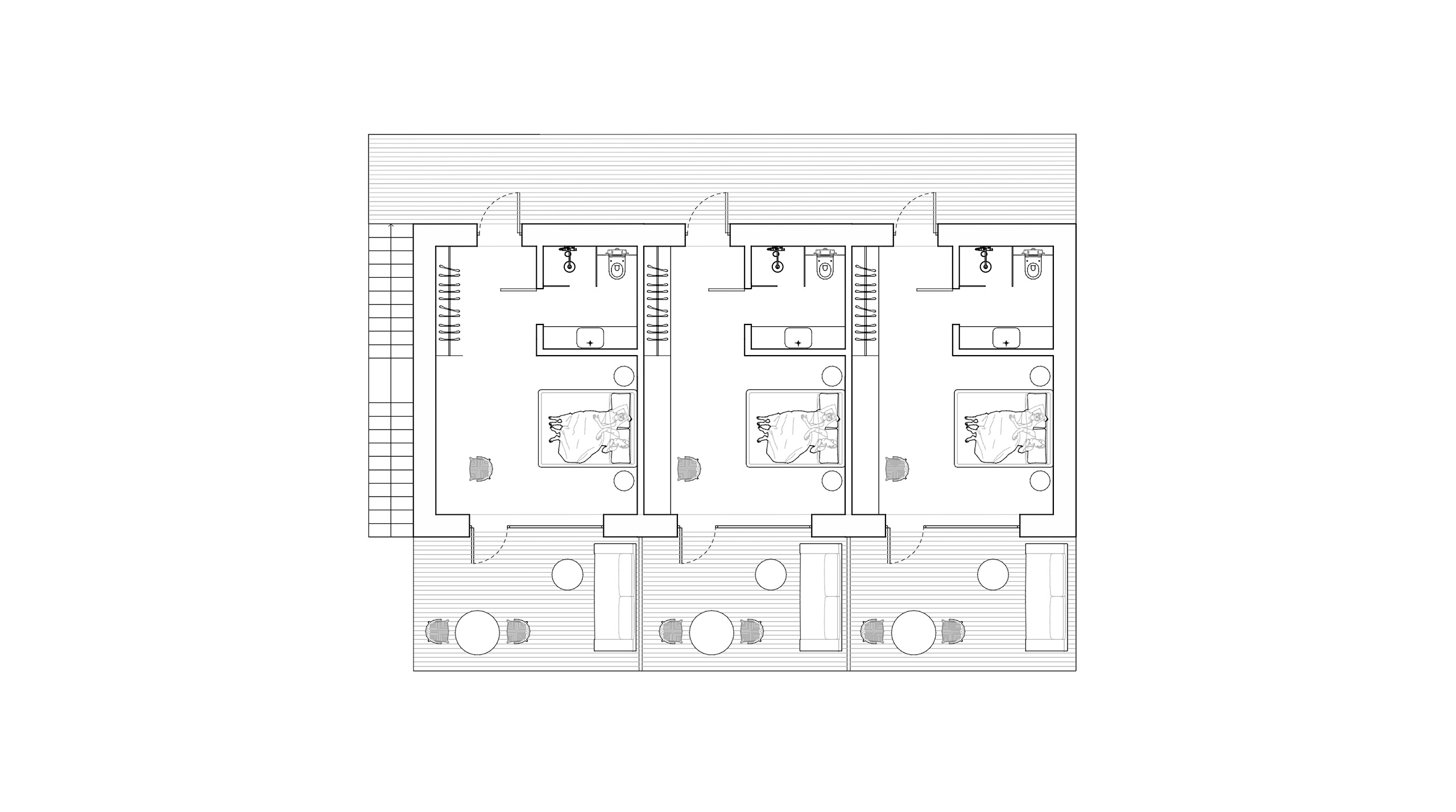
AIRY is a cottage complex located in Slavske, in the Ukrainian Carpathians. The development consists of four private cottages, a three-storey hotel with six rooms, and a restaurant.
The master plan follows the natural slope of the site, arranging the buildings in a cascading composition. Each cottage is positioned to preserve unobstructed panoramic views, ensuring that no unit blocks another. The hotel is placed at the upper part of the site, completing the overall composition and defining the silhouette of the complex within the landscape.
The architecture is based on a traditional regional typology with pitched roofs. The rooflines echo the inclination of the hillside, reinforcing the dialogue between architecture and terrain. The building volumes are restrained, proportionally balanced, and stripped of decorative excess, resulting in a refined and minimal interpretation of a familiar archetype.
The primary façade material is charred timber treated using the shou sugi ban technique, creating a strong graphic identity and a distinct silhouette. This dark exterior is contrasted by light pine cladding on terraces and soffits, adding warmth and emphasizing the structural logic of the buildings.
AIRY merges the traditional Carpathian house form with a contemporary minimalist language, producing a contextual, composed, and architecturally precise environment.
Architect:              S.Hotvianskyi